Проект реконструкции придомового пространства, Будва

Проект реализован под руководством:

Архитектор с более чем 15-летним профессиональным опытом. Прошла полный карьерный путь от техника-чертёжника до ведущего архитектора.

Более 20 лет опыта. Кандидат технических наук. В течение 5 лет занимал должность главного конструктора проектного института.

Консультация
Проект реконструкции придомового пространства, Будва

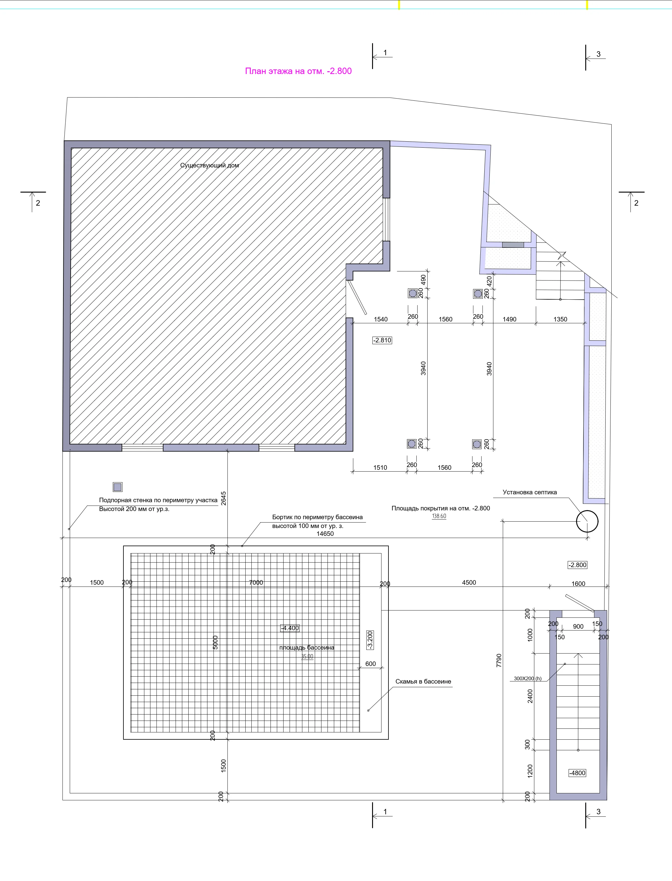
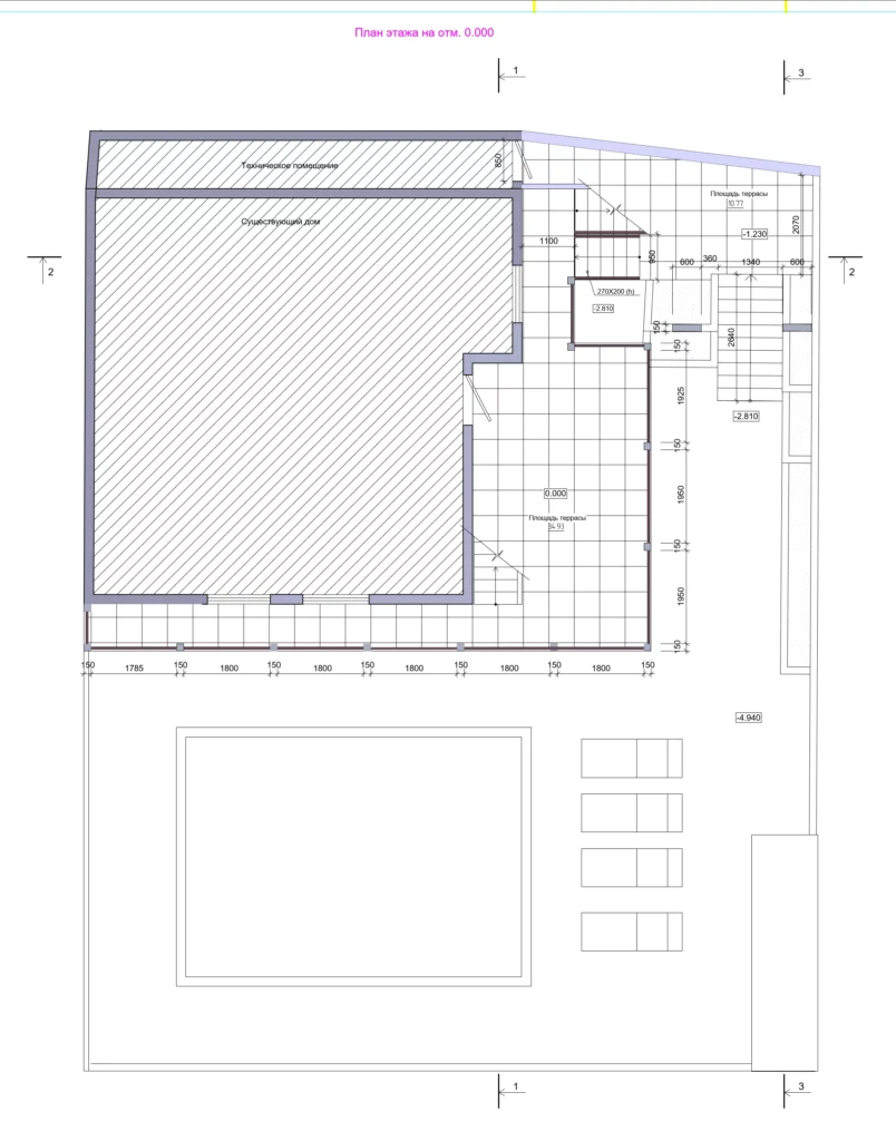
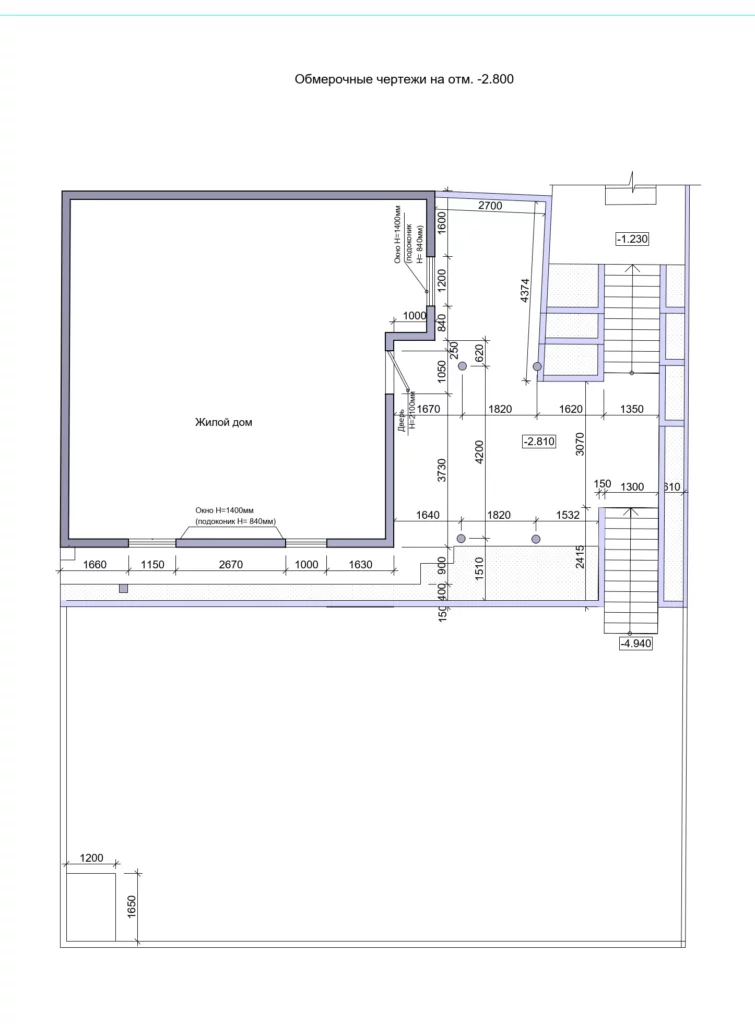
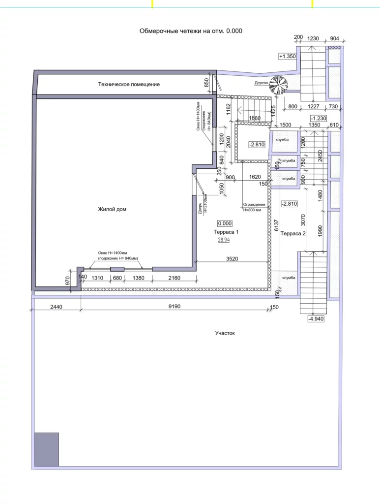
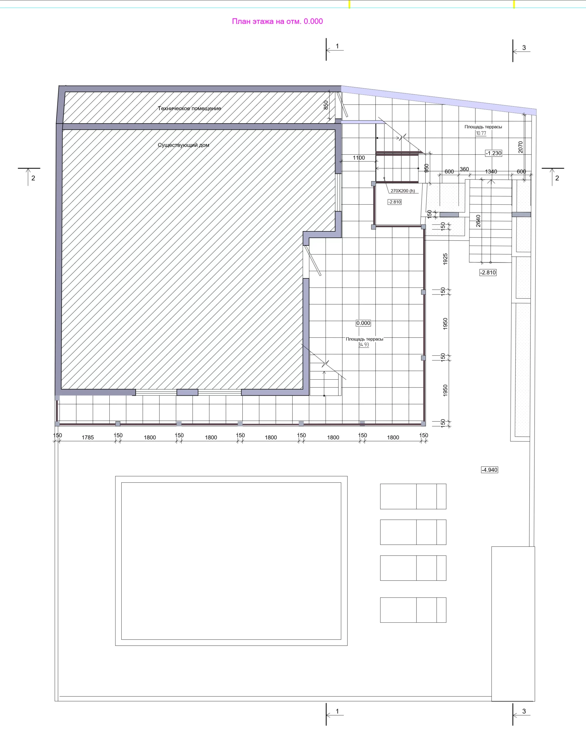
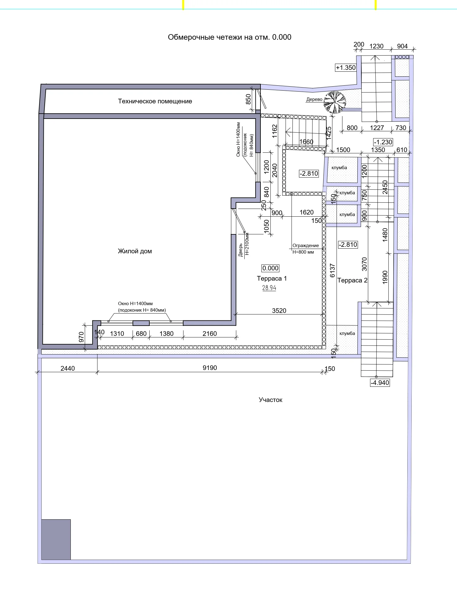
Проект реконструкции придомового пространства направлен на повышение функциональности и комфорта частного жилого дома с учетом существующей застройки и рационального бюджета.

В рамках проекта предусмотрена организация удобного и безопасного доступа в дом со стороны проезжей части, а также устройство индивидуального парковочного места для заказчика с учетом оптимальной логистики участка.

Отдельное внимание уделено освоению эксплуатируемой кровли: запроектирован удобный выход на крышу и размещение на ней зоны отдыха с теневым навесом, что позволяет эффективно использовать пространство и расширить жилую среду.

С учетом габаритов существующего дома подобрано оптимальное размещение и размеры бассейна, обеспечивающие удобство эксплуатации и гармоничное включение в архитектуру участка.

Дополнительно разработано предложение по обновлению фасадов с минимальными затратами — за счет современных отделочных решений и акцентных элементов, позволяющих придать дому актуальный внешний облик без капитальных изменений конструкции.

Заказать консультацию

Google reCaptcha: Неверный ключ сайта.