Жилой дом, 3 этажа — Тиват, Черногория

Проект реализован под руководством:

Архитектор с более чем 15-летним профессиональным опытом. Прошла полный карьерный путь от техника-чертёжника до ведущего архитектора.

Более 20 лет опыта. Кандидат технических наук. В течение 5 лет занимал должность главного конструктора проектного института.

Консультация
Жилой дом, 3 этажа — Тиват, Черногория

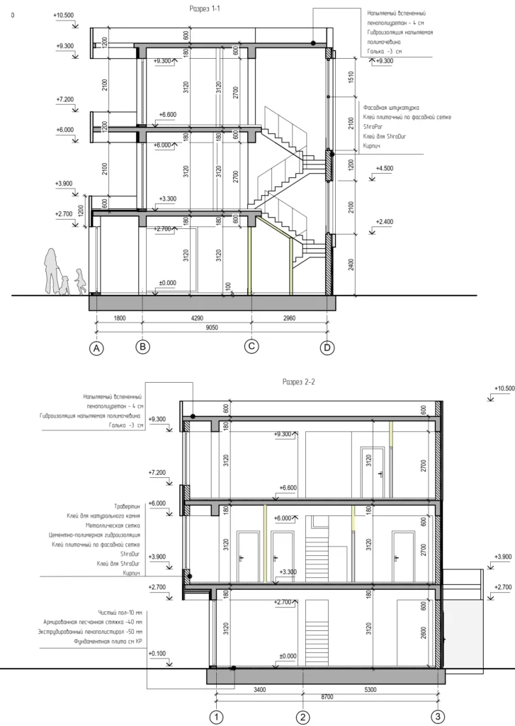
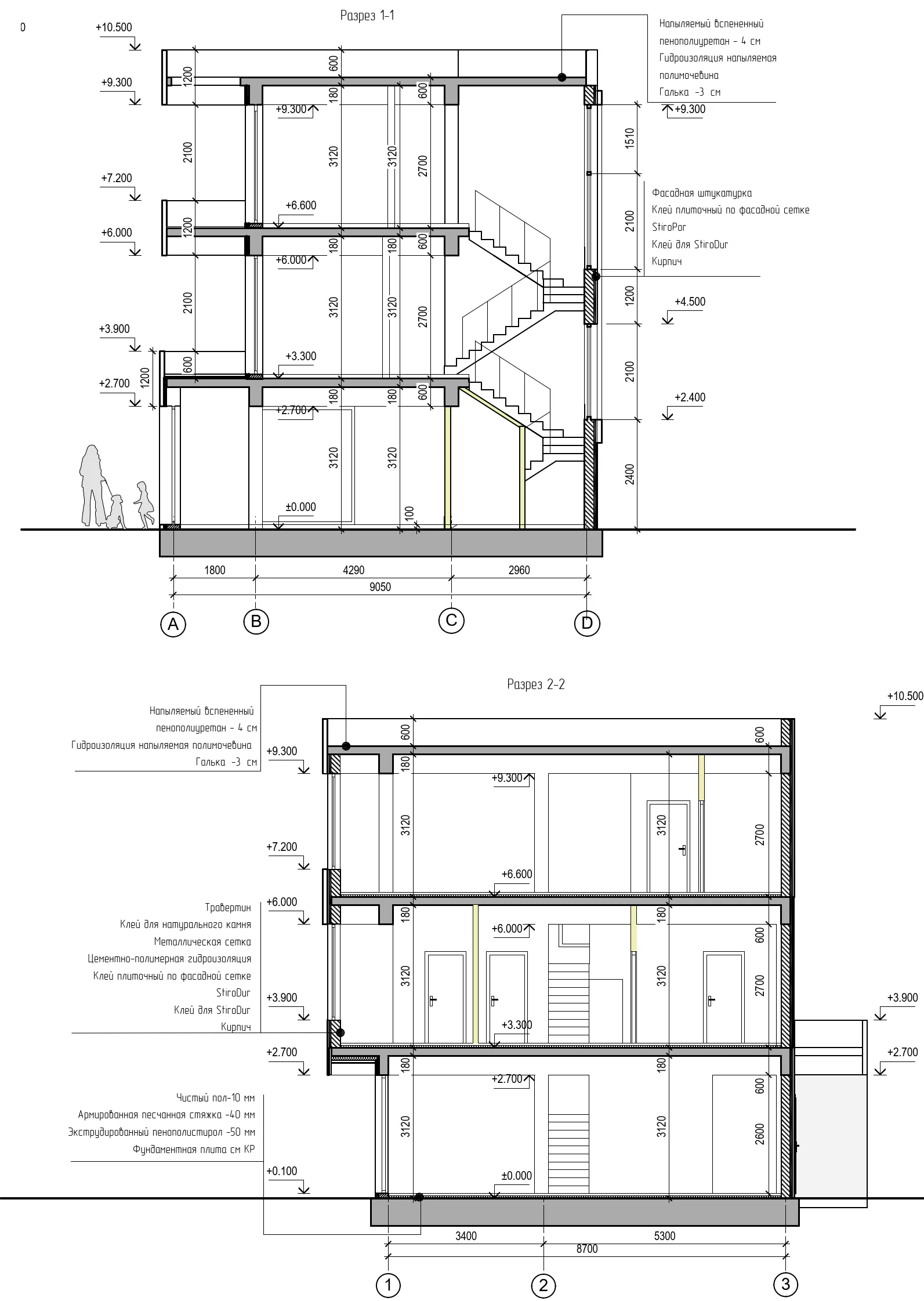
Проект представляет собой трёхэтажный индивидуальный жилой дом общей площадью 255 м², расположенный в районе города Тиват, Черногория.

  • Первый этаж включает уютную кухню-гостиную площадью 54 м² и санузел с душевой кабиной.
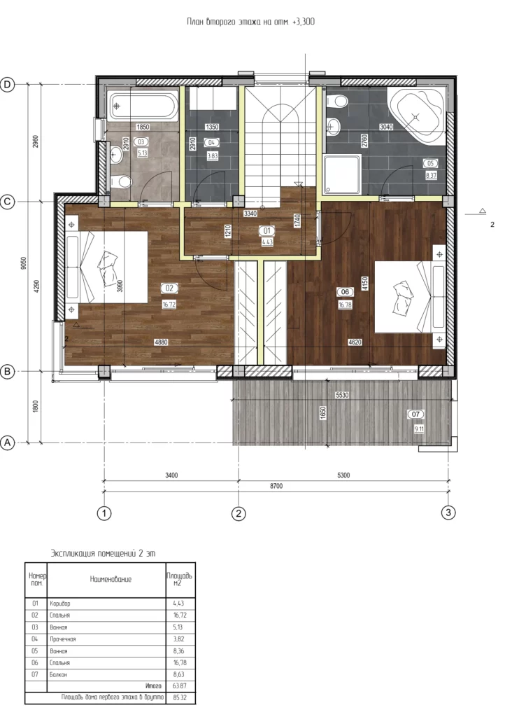
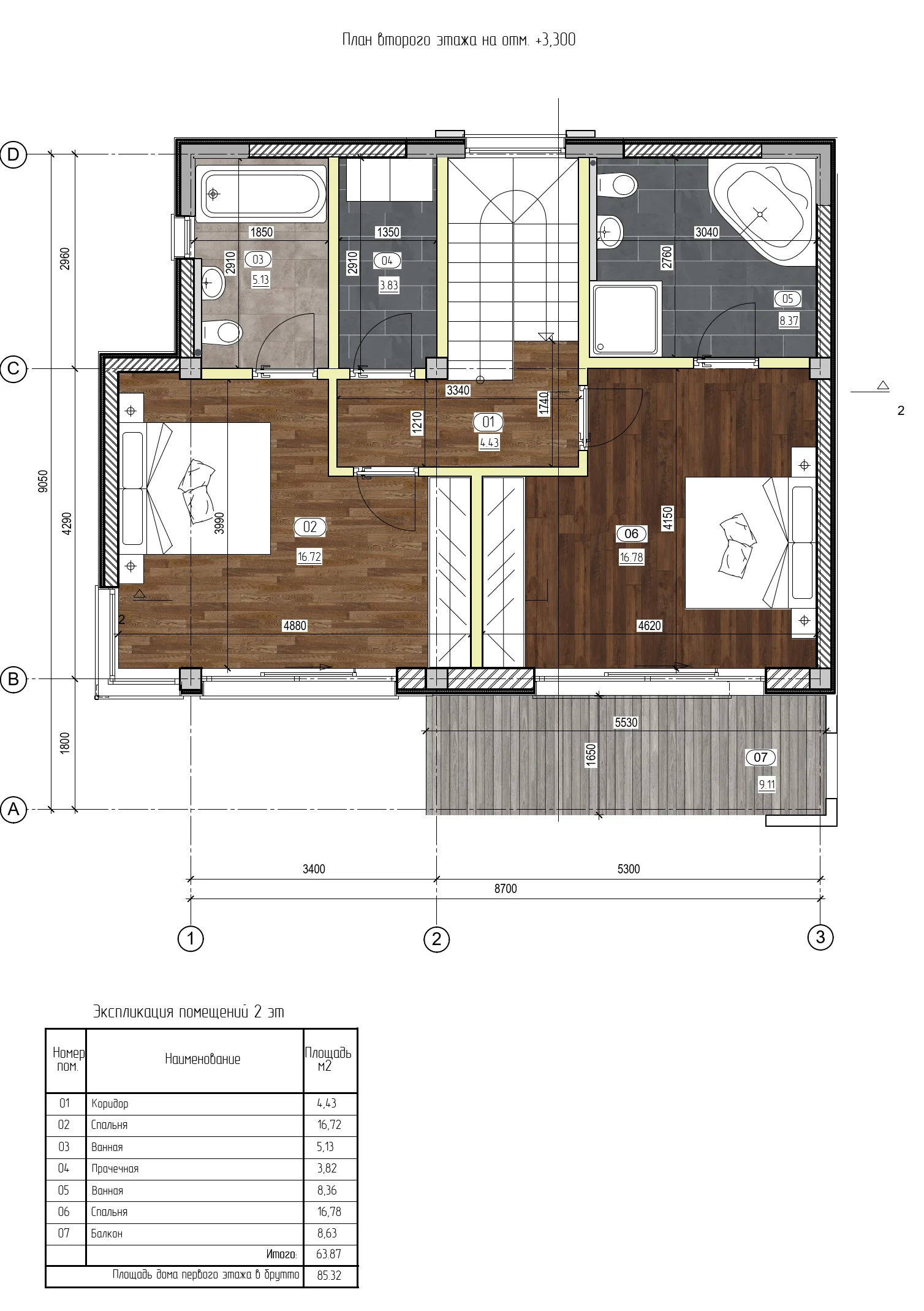
  • Второй этаж состоит из двух просторных спален, каждая со своим санузлом, а также постирочной.
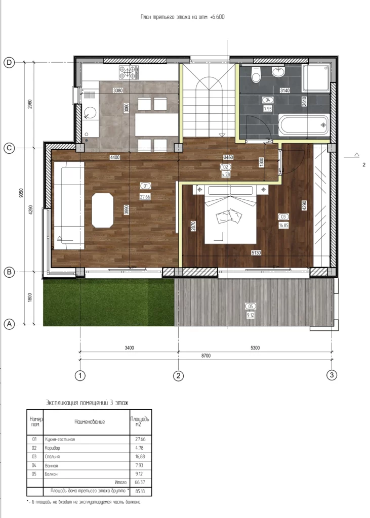
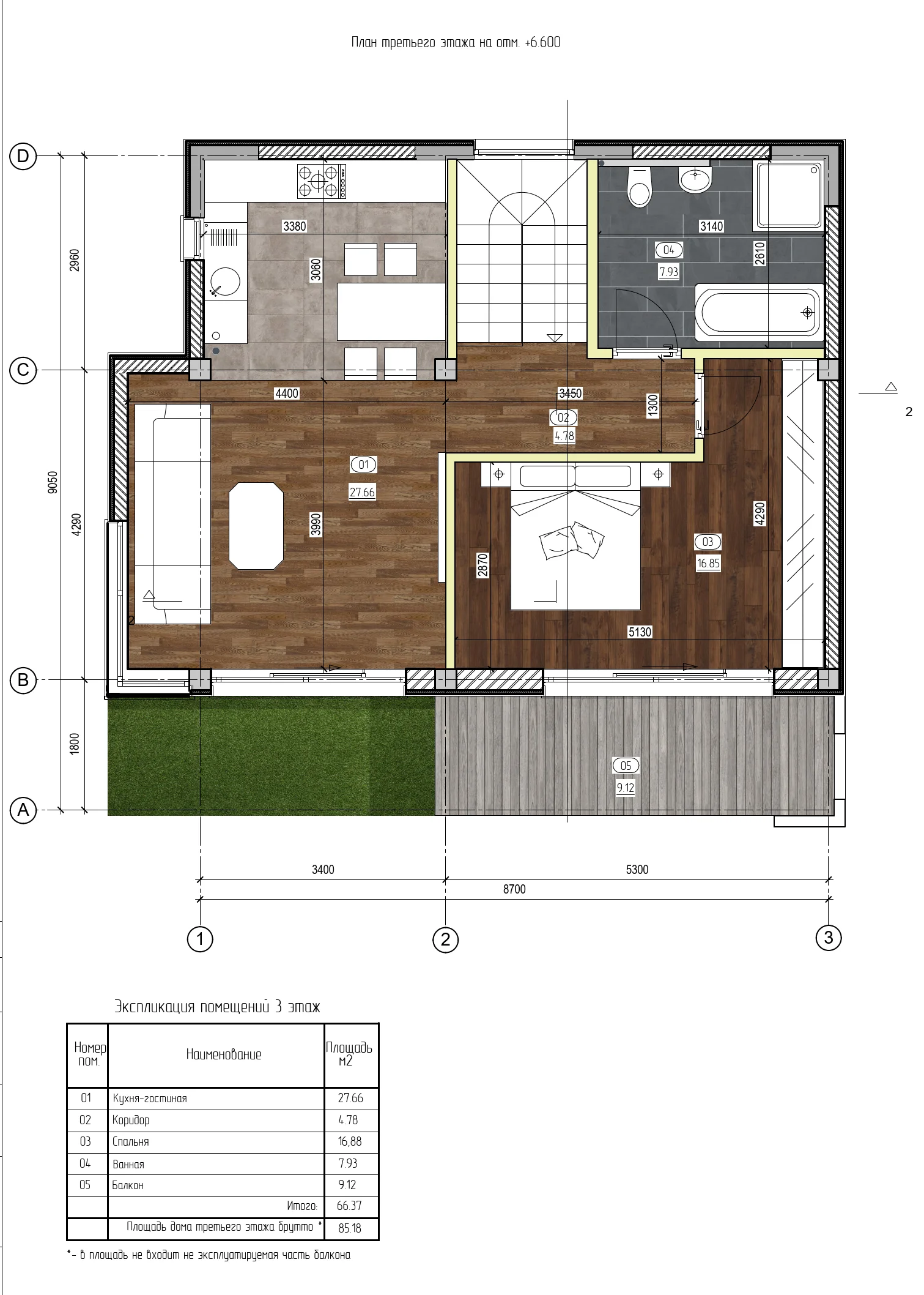
  • Третий этаж спроектирован как самодостаточные апартаменты с одной спальней и совмещённой кухней-гостиной.

Дом рассчитан на аренду для компании до 6 человек: каждая пара получает отдельную спальню с личным санузлом, что обеспечивает комфортное размещение и приватность.

Для данного проекта были выполнены следующие разделы:

Заказать консультацию

Google reCaptcha: Неверный ключ сайта.